Via Torino 42 8 vani 383mq

390.000,00 €
0 Piace
0 Piace

Dati annuncio : Vendita Multivani, Dogliani

Villa indipendente con giardino

A pochi passi dal suggestivo centro storico di Dogliani, cuore pulsante delle Langhe e capitale del Dolcetto, proponiamo in vendita una villa indipendente immersa nella tranquillità e nella privacy di un ampio giardino privato.
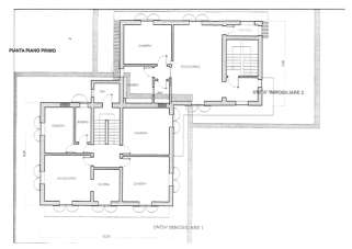
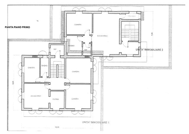
La proprietà è composta da due unità abitative indipendenti, perfette per chi cerca spazi ampi e versatili.
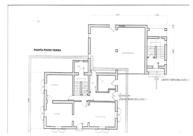
La prima abitazione si sviluppa su tre livelli e offre una superficie complessiva di 273 mq. Al piano terra troviamo una cucina, una taverna ideale per momenti di convivialità ed un comodo locale di sgombero. Salendo al primo piano si accede alla zona giorno principale, composta da una seconda cucina, un ampio soggiorno, tre camere da letto e un bagno. Al piano superiore, il sottotetto offre ulteriore spazio da personalizzare in base alle proprie esigenze.
La seconda unità abitativa, invece, è più raccolta ma altrettanto funzionale, con una superficie di circa 110 mq. Al suo interno si sviluppa una luminosa zona giorno con cucina a vista, una camera da letto, un bagno e un pratico ripostiglio.
L’intera proprietà è immersa in un giardino privato di circa 2.200 mq, che garantisce privacy e relax in ogni stagione.
Completa la proprietà una comoda autorimessa di 75 mq, un locale di sgombero di 57 mq.

Una proposta unica per chi desidera vivere nel verde senza rinunciare alla comodità dei servizi, oppure per chi è alla ricerca di un investimento in un contesto paesaggistico e turistico di grande richiamo.

L’agenzia immobiliare Dotta si distingue da anni nel panorama territoriale grazie all’estrema serietà e competenza dello staff. E’ parte della nostra missione accompagnare il cliente nel processo di valutazione e scelta dell’immobile più confacente alle proprie aspettative e necessità.

Contattaci subito per visionare insieme questa casa nelle Langhe. Saremo lieti di accompagnarti alla proprietà senza alcun impegno, con cortesia e professionalità.

www.dottaimmobiliare.it

  • PropostaOffro
  • ContrattoVendita
  • Prezzo390.000,00 €
  • Anno1930
  • Vani8
  • Numero piani3
  • Mq giardino2100
  • Mq totali383
  • Camere3
  • Bagni3
  • Classe energeticaD
  • Classe energetica (ipe)188.946
  • StatoBuono
  • AscensoreNo
  • CucinaAbitabile
  • TerrazzoNo
  • GiardinoNd
  • CantinaSi
  • ProvinciaCuneo
  • ComuneDogliani
  • IndirizzoVia torino 42
  • CodiceEA-2D2ED4