Via Tovi monolocale 960mq
Dati annuncio : Vendita Monovano, Cornedo Vicentino
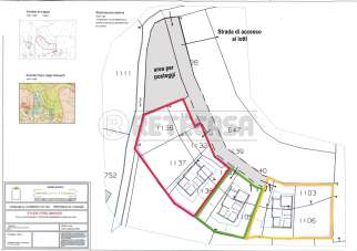
CORNEDO VICENTINO: In splendida zona con bellissima vista panoramica disponiamo di lotto di terreno, in parte edificabile e in parte agricolo, di oltre 950 mq . Possibilità di edificare 540 mc e realizzare una soluzione indipendente su uno o due livelli. - c.e. ´´non applicabile´´ € 55000 rif. RL236-1 - RETECASA CORNEDO dal 2006 offre tutti i servizi per la TUA SOLUZIONE IMMOBILIARE, ci occupiamo di verifiche urbanistiche e catastali, stime immobiliari, servizi fotografici, pubblicizzazione dell´immobile in vendita tramite il nostro sito web e i social, consulenze finanziarie con professionisti del settore, redazione di attestati di prestazione energetica ( oggi obbligatori per la vendita e la locazione di ogni immobile ) e redazione e registrazione telematica dei contratti di locazione. Inoltre presso la nostra agenzia potete trovare lo STUDIO TECNICO CON UN GEOMETRA INDIPENDENTE. Passate a trovarci in sede, a Cereda di Cornedo Vicentino, in via Monte Verlaldo 113/c -
- PropostaOffro
- ContrattoVendita
- Prezzo55.000,00 €
- Anno2022
- Vani1
- Numero piani1
- Mq totali960
- Classe energeticaNa
- Classe energetica (ipe)0.0
- AscensoreNo
- TerrazzoNo
- GiardinoNs
- CantinaNo
- ProvinciaVicenza
- ComuneCornedo vicentino
- IndirizzoVia tovi
- Data10-11-2025 06:19:18
- CodiceEA-0FB68D











