Via Trieste 31 5 vani 200mq
Dati annuncio : Vendita Pentavani, Arzignano
ARZIGNANO : NUOVA LOTTIZZAZIONE PER N. 3 VILLETTE INDIPENDENTI !!!
In zona limitrofa proponiamo in vendita soluzione abitativa centrale completamente fuori terra e disposta su due livelli con garage doppio affiancato. No interrato !!
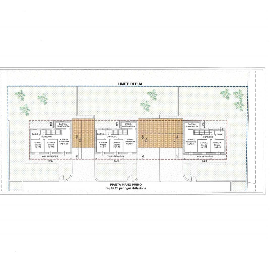
Dall´accesso pedonale o carraio completamente privato si accede direttamente alla proprietà circondata fronte/retro dal giardino di circa 190 mtq. La zona giorno in open space comunica direttamente con l´ampio esterno dove sarà possibile installare una pompeiana ed è servita da bagno con lavanderia. La scala interna conduce al piano superiore dove trovano spazio la camera matrimoniale con cabina armadio e bagno padronale, completano la zona notte altre due camere ed un ulteriore servizio.
Il garage doppio è affiancato alla casa tutto fuori terra in stile americano con apertura automatica e con accesso diretto alla zona giorno.
Ogni unità abitativa risulta essere completamente indipendente e non comprende spazi comuni.
Tutte le migliori tecniche di costruzione saranno usate nell´edificazione delle 3 unità allo scopo di avere la massima efficienza energetica e di risparmio oggettivo.
Classe energetica A/4, 13,96 kWh/m anno.
QUATTRO BUONI MOTIVI PER ACQUISTARLA : 1) Nuova costruzione 2) Massima efficienza energetica 3) Nuovo quartiere residenziale su strada chiusa 4) Possibilità di scelta finiture.
Il gruppo che gestisce l´agenzia MyHome Immobiliare di Arzignano opera da oltre 10 anni sui comuni di Arzignano, Chiampo, Trissino, Montecchio Maggiore, Montorso Vicentino, Montebello Vicentino e Zermeghedo,
L´agenzia offre servizi immobiliari a 360°.
Siamo professionisti fortemente specializzati e preparati, grazie alla nostra esperienza conosciamo il mercato immobiliare e tutte le sue normative.
Il nostro team crede fortemente nell’etica professionale, tutelando la riservatezza.
Il nostro obbiettivo è soddisfare le esigenze immobiliari con affidabilità, trasparenza, coerenza e serietà.
Se vuoi vendere la tua abitazione o cerchi la tua nuova casa rivolgiti al nostro team di esperti.
Ad oggi offriamo più di 350 immobili in vendita, più di 300 immobili compravenduti e il 98% dei nostri clienti soddisfatti.
Vieni a trovarci nella nostra sede in via Trieste 20 ad Arzignano (VI).
- PropostaOffro
- ContrattoVendita
- Prezzo370.000,00 €
- Vani5
- Numero piani2
- Mq giardino190
- Mq totali200
- Camere3
- Classe energeticaA+
- Classe energetica (ipe)14.0
- StatoIn costruzione
- AscensoreNo
- CucinaAngolo cottura
- TerrazzoNo
- GiardinoNd
- CantinaNo
- RiscaldamentoAutonomo
- BoxSi
- ProvinciaVicenza
- ComuneArzignano
- IndirizzoVia trieste 31
- CodiceEA-06724C






