VIA VENETO 6000mq
20.000,00 €
0 Piace
0 Piace
Dati annuncio : Affitto Case, Sarcedo
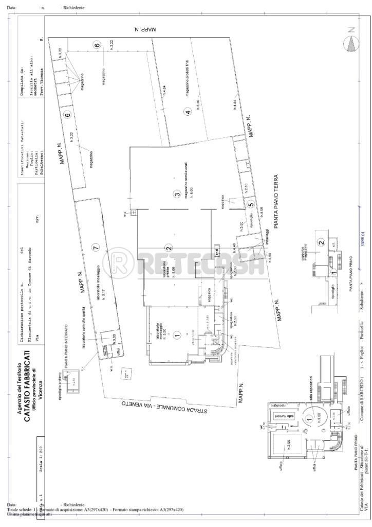
SARCEDO, proponiamo in locazione porzioni di capannone di varie dimensioni e altezze, anche in blocco, con palazzina uffici. Ripartizione nella prima foto. Canone € 3,50 mensili al mq. Info Ivan 333 5436678.
- PropostaOffro
- ContrattoAffitto
- Prezzo20.000,00 €
- Numero piani1
- Mq totali6000
- Classe energeticaVa
- Classe energetica (ipe)0.0
- StatoDiscreto
- AscensoreNo
- TerrazzoNo
- GiardinoNs
- CantinaNo
- ProvinciaVicenza
- ComuneSarcedo
- IndirizzoVia veneto
- Data20-12-2025 05:19:15
- CodiceEA-ABA1EB











