Via Vignasse bilocale 270mq
Dati annuncio : Vendita Bivani, San Lorenzo al Mare
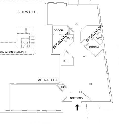
San Lorenzo al mare , nel centro a due passi dal mare e dalla pista ciclabile, locale uso sportivo in ottime condizioni con tutti gli impianti a norma, ristrutturato nel 2008, libero su tre lati; composto da due grandi ambienti, due spogliatoi, due bagni, ripostiglio. Pavimenti in parquet e isolamento acustico. Riscaldamento con pompe di calore, ara condizionata. attualmente occupato da un inquilino.
L’indirizzo inserito nell’annuncio è SOLO indicativo della zona in cui è posizionato l’immobile. Il civico esatto non è riproducibile per dovuta riservatezza. Siamo aperti al pubblico dal lunedì al venerdì dalle 9:30 alle 12:30 e dalle 15:00 alle 19:00, il sabato dalle 9:00 alle 13:00 e su appuntamento tutta la settimana dalle 9:00 alle 19:00. Potete contattarci ai seguenti recapiti telefonici: 0183/651037 oppure 3474753007 per le vendite mentre per gli affitti solo al 0183651037 dalle 15:00 alle 19:00. la nostra agenzia vi seguirà in tutte le fasi della trattativa fino al rogito con una consulenza capillare in tutti i passi necessari alla conclusione della vendita. Vi aspettiamo numerosi per proporVi le nostre soluzioni immobiliari e per stimare, valutare e collaborare insieme per la vendita del Vostro immobile, certi e sicuri di poter ascoltare e soddisfare le Vostre richieste.
- PropostaOffro
- ContrattoVendita
- Prezzo180.000,00 €
- Vani2
- Numero piani1
- Mq totali270
- Bagni2
- Classe energeticaG
- Classe energetica (ipe)160.0
- StatoRistrutturato
- AscensoreNo
- TerrazzoNo
- GiardinoNs
- CantinaNo
- RiscaldamentoAutonomo
- DisponibilitOccupato
- ProvinciaImperia
- ComuneSan lorenzo al mare
- IndirizzoVia vignasse
- Data13-12-2025 06:09:13
- CodiceEA-F15004

