Viale Europa 797 9 vani 180mq
Dati annuncio : Vendita Multivani, Lucca
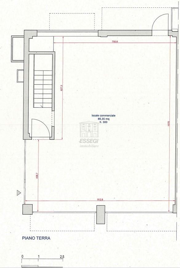
UF03590 PRESTIGIOSO FONDO COMMERCIALE collocato a 200 metri dalle mura di Lucca su primaria viabilità ad alta intensità di passaggio con una visibilità unica - il fondo commerciale è collocato al piano terra e interrato di un edificio di recente costruzione interamente destinato ad attività commerciali di pregio e uffici. Posizionato in angolo è molto visibile al passaggio pedonale e auto.Due vetrine in fronte e due laterali. La superficie interna è di mq.90 al piano terra,unico vano con una altezza utile di ml.3.00 e di mq. 90 al piano interrato finestrato raggiungibile con ampia scala interna con una altezza utile di ml.2,40 suddiviso in: disimpegno,2 grandi depositi,un antibagno,tre bagni ed uno spogliatoi. Esternamente dotato di resede di proprietà esclusiva ( da utilizzare come parcheggio privato ,dehors) di mq. 160 . Idoneo per attività commerciale,bar, ristorante,sede bancaria o assicurativa. Presente canna fumaria. Molto interessante per investimento.Ulteriori informazioni esclusivamente presso i nostri uffici. Richiesta € 290.000,00 trattabili
N.B. L´ubicazione su mappa potrebbe non corrispondere all´esatta posizione dell´immobile.
- PropostaOffro
- ContrattoVendita
- Prezzo290.000,00 €
- Vani9
- Numero piani2
- Mq box160
- Mq totali180
- Bagni3
- Classe energeticaG
- Classe energetica (ipe)75.47
- StatoBuono
- AscensoreNo
- TerrazzoNo
- GiardinoNs
- CantinaNo
- RiscaldamentoAutonomo
- BoxSi
- ProvinciaLucca
- ComuneLucca
- IndirizzoViale europa 797
- Data09-08-2025 06:07:22
- CodiceEA-E35169







