Viale Pacini, Lucca trilocale 90mq
1.100,00 €
0 Piace
0 Piace
Dati annuncio : Affitto Trivani, Lucca
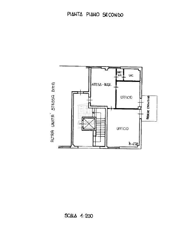
LC01565-9 UFFICIO VICINO MURA - 90 MQ - Situato al piano secondo di complesso commerciale/direzionale, con ascensore ed ampia possibilità di parcheggio, Essegi Immobiliare propone in affitto fondo uso ufficio/studi medici di 90 mq, altezze di 2,70 metri composto da: ampio ingresso, 2 uffici, antibagno e bagno. Climatizzazione inverno/estate nuova, centralizzata con pompa di colore autonoma. Facilmente raggiungibile e ben visibile. Classe energetica E. Canone mensile Euro 1.100,00 + IVA Libero da Gennaio 2025
N.B. Per motivi di privacy l´indirizzo pubblicato non corrisponde alla sua esatta ubicazione
- PropostaOffro
- ContrattoAffitto
- Prezzo1.100,00 €
- Vani3
- Numero piani1
- Mq totali90
- Bagni1
- Classe energeticaE
- Classe energetica (ipe)206.0
- StatoBuono
- AscensoreNo
- TerrazzoNo
- GiardinoNs
- CantinaNo
- RiscaldamentoCentralizzato
- BoxSi
- ProvinciaLucca
- ComuneLucca
- IndirizzoViale pacini, lucca
- Data21-10-2025 05:09:46
- CodiceEA-2F28CA






