Villa 5 vani 270mq
Dati annuncio : Vendita Villa, Montecarlo
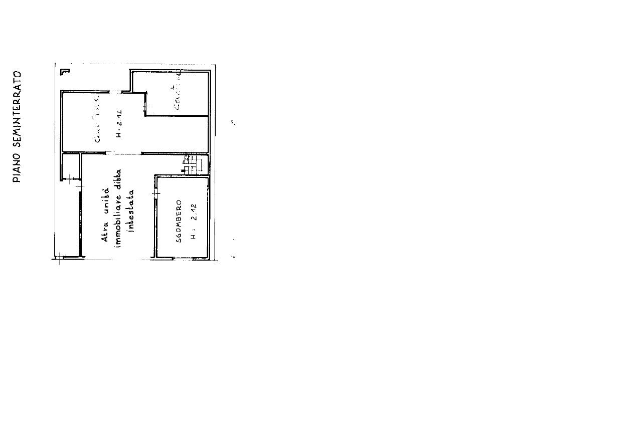
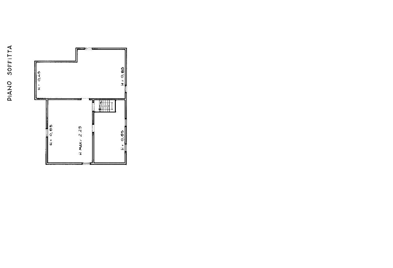
MONTECARLO frazione, in ottima posizione immersa nella campagna (ma non isolata) vendiamo bella villa edificata negli anni ´70, ben tenuta e circondata da bellissimo giardino (con pozzo) e terreno ad uliveto per un totale di circa 12.000 mq. La casa si sviluppa principalmente al solo piano terra, che con una superficie di 180 mq offre ampie e luminose stanze. Dall´ingresso, si accede alla zona soggiorno pranzo con camino e loggiato, cucinotto, disimpegno per la zona notte, tre camere e due bagni. Tramite scala interna si accede al piano seminterrato dove troviamo un grande garage, un´ampia cantina, lavanderia e una taverna completamente arredata di cucina in muratura con forno (ideale per pranzi e cene con gli amici). Sempre tramite scale interne è possibile accedere alla grandissima soffitta, non abitabile, ma molto comoda per uso ripostiglio. La villa è già abitabile, ma necessita di lavori di ammodernamento. Bellissima zona per gli amanti della campagna Toscana! - SC9407018
- PropostaOffro
- ContrattoVendita
- Prezzo520.000,00 €
- Vani5
- Numero piani3
- Mq giardino11000
- Mq totali270
- Bagni3
- Classe energeticaG
- StatoBuono
- AscensoreNo
- GiardinoPrivato
- CantinaSi
- RiscaldamentoAutonomo
- ArrediNo
- Cadenza spese condominialiAnnuali
- ProvinciaLucca
- ComuneMontecarlo
- Data13-12-2025 06:34:23
- CodiceEA-98940A











