Villa 6 vani 180mq

Dati annuncio : Vendita Villa, Ragusa
La Pronto Casa Group Vende, in una delle zone residenziali più ambite di Ragusa, Ville di nuova costruzione su tre livelli per complessivi 180 mq circa commerciali, con ulteriori 45 mq circa al piano seminterrato.
Le ville, inserite in un complesso residenziale di unità indipendenti, rappresentano un’ottima opportunità per chi cerca una soluzione abitativa moderna, personalizzabile ed immersa nel verde.
La vendita è possibile sia chiavi in mano che allo stato rustico avanzato consentendo di scegliere finiture e dettagli secondo il proprio stile e le proprie esigenze. Il prezzo varia in base alle caratteristiche di ciascuna unità.
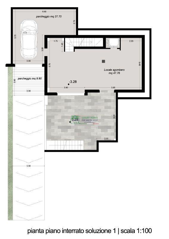
DISPOSIZIONE INTERNA:
- Piano terra con ingresso su zona living con cucina a vista e ampia veranda coperta, con grandi vetrate sul giardino pertinenziale
- Piano primo: due o tre camere da letto e un servizio
- Piano seminterrato: ambiente multiuso, veranda e garage
CARATTERISTICHE PRINCIPALI:
- Giardino privato
- Grandi vetrate
- Verande coperte
- Garage
- Predisposizione montacarichi
- Possibilità di personalizzazione
- Stato rustico avanzato
Il prezzo pubblicato si riferisce allo stato rustico avanzato.
Per maggiori informazioni sull’immobile e/o per una consulenza sulla fattibilità del mutuo per l’acquisto in stato grezzo con successivo completamento, contattare l’Agenzia 1 di Ragusa al 0932 257603 oppure visitare il nostro sito.
- PropostaOffro
- ContrattoVendita
- Prezzo300.000,00 €
- Vani6
- Mq totali180
- Camere3
- Bagni2
- StatoNuova costruzione
- CucinaCucina a vista
- GiardinoPrivato
- Tipologia immobileVilla
- ProvinciaRagusa
- ComuneRagusa
- Data05-10-2025 06:13:49
- CodiceEA-762E89











