Villa 7 vani 250mq
Dati annuncio : Vendita Villa, Maddaloni
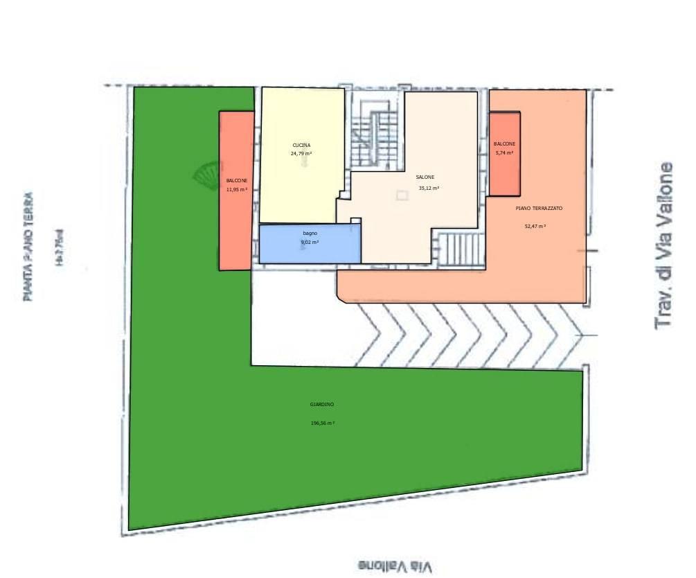
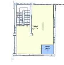
MADDALONI - VIA VALLONE In vendita a Maddaloni, proponiamo in esclusiva una villa multipiano di circa 250 M pi box auto e giardino di circa 200 mq. La propriet si trova in uno stato di conservazione buono ed composta da un totale di 7 locali, di cui 4 camere da letto e 4 bagni. L´esposizione della villa ottima, con orientamento a sud, est e nord, garantendo una luminosit naturale per gran parte della giornata, il che significa anche un importante risparmio energetico. La villa viene venduta non arredata, lasciando cos la possibilit all´acquirente di personalizzare gli spazi secondo le proprie esigenze. Tutti gli ambienti sono ampi e luminosi cos come la cucina che dotata di tutti i comfort necessari ed accesso diretto al giardino. La propriet servita da diversi balconi con un terrazzo al piano secondo ed ampio terrazzo di copertura perfetto per godere del panorama circostante. Come gi citato, presente un giardino privato, ideale per trascorrere momenti di relax e organizzare pranzi e cene all´aperto. Completa la propriet un ampio box auto, perfetto per parcheggiare comodamente anche un´autovettura di tipo suv. Non perdere l´opportunit di diventare proprietario di questa splendida villa in una delle zone pi ricercate di Maddaloni. Cosa aspetti? Contattaci per organizzare una visita! Per info e/o appuntamenti contattaci, allo 0823.436914 Seguici per restare sempre aggiornato su Fb: Eccocasa Maddaloni Instagram: Eccocasa_ Maddaloni - SC9551208
- PropostaOffro
- ContrattoVendita
- Prezzo370.000,00 €
- Anno1979
- Vani7
- Numero piani4
- Mq giardino200
- Mq terrazzo100
- Mq totali250
- Bagni4
- StatoBuono
- AscensoreNo
- TerrazzoSi
- GiardinoPrivato
- CantinaNo
- RiscaldamentoAutonomo
- ArrediNo
- Cadenza spese condominialiAnnuali
- ProvinciaCaserta
- ComuneMaddaloni
- Data31-12-2025 05:05:16
- CodiceEA-BB8E8B








