Villa 8 vani 616mq

Dati annuncio : Vendita Villa, Cisano Bergamasco
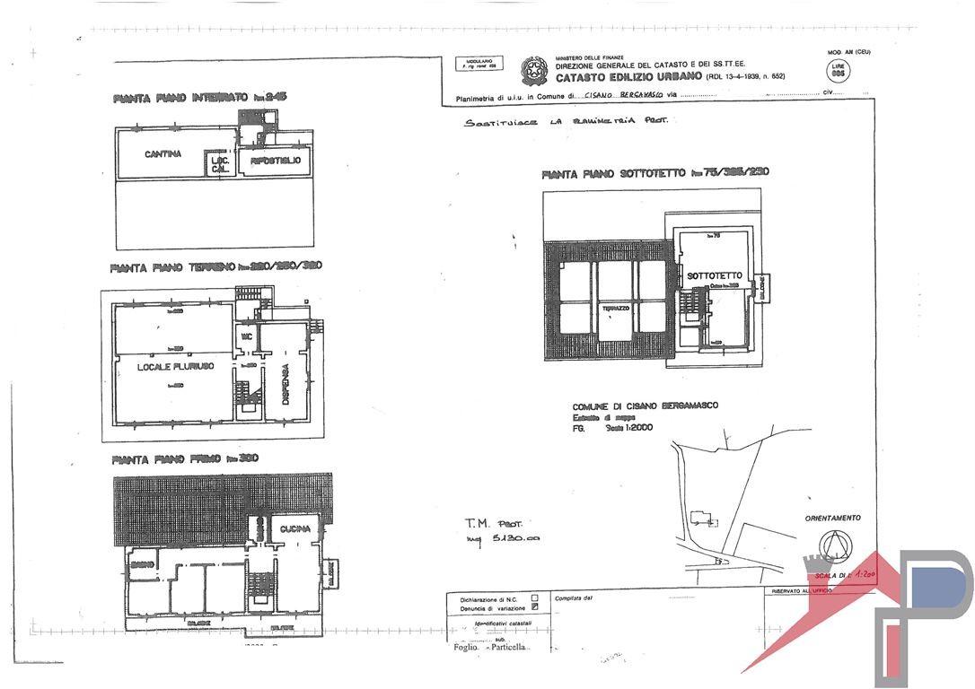
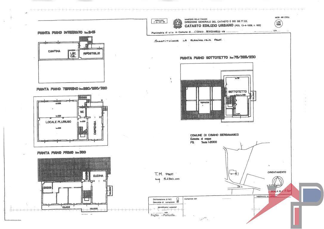
Cisano Bergamasco in bellissima posizione collinare immersa nel verde si propone una villa singola dall´ampia metratura con terreno pertinenziale di Mq.4900 ca. tenuto a giardino,; La villa di una metratura importante dispone di ampi spazi abitativi e di servizio e si presta anche ad una eventuale suddivisione per 2 famiglie; l´immobile é composto da P.T. di circa Mq.207 dove troviamo l´ingresso, un ampio salone pluriuso, un bagno, locale cucina e dispensa, scala di accesso al primo piano di Mq.201 ca. dove troviamo l´abitazione padronale composta da ingresso, soggiorno, cucina, 3 ampie camere da letto, doppi servizi, ampio balcone panoramico con uscita da tutti i locali, e altro piccolo bacone, salendo al piano superiore troviamo un´ampia mansarda di Circa Mq.68 con un grande terrazzo di Circa Mq.140, completa la proprietà un ampio cantinato di Circa Mq.106 + 2 ampie autorimesse di circa ulteriori Mq.30. L´immobile é tenuto in buonissimo stato di manutenzione, gode di posizione privilegiata e dispone di un ampio terreno privato di Circa Mq.4900 inoltre é immerso in zona verde e tranquilla ma comunque residenziale, mentre il paese e i suoi servizi sono raggiungibili in circa 5 minuti. Ottima soluzione per chi cerca ampi spazi sia interni che esterni lontani dal caos ma nelle vicinanze del centro e dalla città di Bergamo e di Lecco raggiungibili comodamente in 20 minuti circa di strada.
- PropostaOffro
- ContrattoVendita
- Prezzo550.000,00 €
- Vani8
- Mq totali616
- Camere5
- Bagni3
- Classe energeticaG
- Classe energetica (ipe)38891
- Classe energetica (unità di misura)Kwh/m²a
- CucinaCucina abitabile
- GiardinoPrivato
- Tipologia immobileVilla
- ProvinciaBergamo
- ComuneCisano bergamasco
- Data24-11-2025 05:16:54
- CodiceEA-1E55E8











