Villa 9 vani 450mq

Dati annuncio : Vendita Villa, Nibionno
Nibionno - è inserito nel parco regionale della valle del Lambro, ed è attraversato da ben tre ciclovie, e ben collegato con le principali arterie stradali. Posizionata In una bella zona residenziale con una buona esposizione soliva, proponiamo elegante villa ben conservata e costruita con tecniche moderne disposta su tre livelli.
L’ingresso del piano terra di c.a. 140 mq ci conduce al comodo, luminoso e spazioso soggiorno con camino che si affaccia sull’ampio portico di c.a. 36 mq, adiacente troviamo la grande cucina che anch’essa si apre verso il portico, il disimpegno ci accompagna alla zona notte dove troviamo due bagni di cui uno con doccia e l’altro con vasca, e tre camere di cui due matrimoniali, a completamento del piano terra un’area pertinenziale di c.a. 800 mq che dona riservatezza.
La scala ci porta al livello superiore mansardato di c.a. 120 mq ristrutturato nel 2009, il disimpegno ci introduce nel soggiorno con camino che affaccia sul balcone, e attigua troviamo la cucina abitabile, dal disimpegno si arriva alla zona notte, che è composta dal bagno e due camere di cui una matrimoniale entrambi affacciano sul balcone.
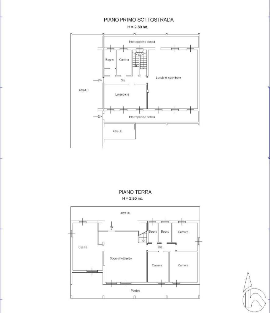
Il piano seminterrato di c.a. 160 mq si compone di un locale da poter usufruire come taverna, la comoda lavanderia, la cantina e il bagno, oltre all’autorimessa di c.a. 40 mq collegata con l’abitazione.
La soluzione si presta per soddisfare diverse esigenze, come abitazione sia per uno o più nuclei familiari, ideale anche per svariate attività quali studi dentistici ecc. Rif. VV 803 - Se sei interessato a visionare l´immobile invia messaggio per whatsapp al seguente numero 0341281454
Sito www.aziendeimmobili.it
Le informazioni e i valori presenti nell´annuncio sono puramente indicativi, e non costituiscono, in alcun modo, elemento contrattuale. Le informazioni dettagliate e specifiche dell´immobile verranno fornite presso i nostri uffici.
Descrizione della Posizione
Esperienza l´atmosfera vivace e gastronomica di Nibionno, un incantevole comune con un´ampia varietà di punti di interesse entro 14 minuti a piedi. Con un totale di 4 opzioni nel gruppo foodAndDrinks, potrai deliziare il tuo palato con una passeggiata di 6 minuti fino a Piadinaïf, un ristorante fast food che offre specialità italiane come la piadina. Se preferisci un´esperienza più rilassante, a soli 12 minuti a piedi troverai Pizzeria Trattoria Il Granaio, dove potrai gustare autentiche pizze tradizionali. Inoltre, a 13 minuti a piedi c´è Il dollaro, un altro ristorante che offre deliziose pizze. Se sei alla ricerca di un´esperienza culinaria completa, a 14 minuti a piedi c´è Agorà Sweet Eat Drink, un locale che offre una varietà di opzioni culinarie, tra cui ristorante, pizzeria, pasticceria e gelateria.
Non solo cibo e bevande, ma anche istruzione di qualità sono a portata di mano, con la Scuola Primaria Statale Bruno Munari a soli 11 minuti di distanza a piedi. Per le necessità quotidiane, il Panificio Tagliabue, una panetteria, si trova a 14 minuti a piedi, offrendo una comoda opzione per il tuo pane e dolci preferiti. Con la combinazione di queste attrazioni, Nibionno offre un´esperienza completa che accontenterà tutti i sensi.
- PropostaOffro
- ContrattoVendita
- Prezzo595.000,00 €
- Vani9
- Mq totali450
- Camere6
- Bagni4
- Classe energeticaE
- Classe energetica (ipe)26293
- Classe energetica (unità di misura)Kwh/m²a
- StatoRistrutturato
- CucinaCucina abitabile
- GiardinoPrivato
- Tipologia immobileVilla
- ProvinciaLecco
- ComuneNibionno
- Data29-09-2025 06:08:39
- CodiceEA-1F5EB6