Villa a schiera 5 vani 170mq
229.000,00 €

0 Piace
0 Piace
Dati annuncio : Vendita Villa a schiera, Fonte Nuova
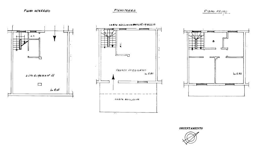
FONTE NUOVA – Località Tor Lupara – A ridosso di tutti i principali servizi e in posizione strategica per la viabilità, proponiamo in vendita un villino a schiera su tre livelli di circa 170 mq. L’immobile, totalmente residenziale e in buono stato manutentivo, è composto da: Piano Seminterrato: ampia sala hobby con camino, bagno ed una piccola cantina; Piano Terra: salone triplo con cucina a vista e corte d’accesso di circa 20 mq.; Piano Primo: due camere matrimoniali, cameretta, bagno e balcone. Possibilità parcheggio. Affrancazione in corso. Prezzo € 229.000 – Per ulteriori informazioni potete contattare la Bea Immobiliare allo 06/90018074 – 06/90018696 – 327/0411867 oppure [email protected]
- PropostaOffro
- ContrattoVendita
- Prezzo229.000,00 €
- Vani5
- Mq totali170
- Camere3
- Bagni2
- Classe energeticaF
- Classe energetica (ipe)351
- Classe energetica (unità di misura)Kwh/m²a
- StatoBuono stato
- CucinaCucina a vista
- GiardinoPrivato
- Tipologia immobileVilla a schiera
- ProvinciaRoma
- ComuneFonte nuova
- Data02-12-2025 06:25:59
- CodiceEA-56E007











