Villa a schiera quadrilocale 125mq

Dati annuncio : Vendita Villa a schiera, Faenza
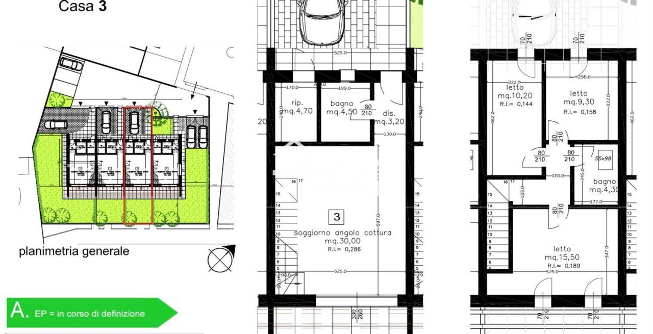
La villetta si sviluppa su due piani. Al piano terra si trova l’ingresso che conduce alla zona giorno composta da un ampio e luminoso living con cucina a vista, e un bagno finestrato con doccia. La vetrata della sala si affaccia sul giardino privato, dotato di un patio con travi in legno ideale per godersi le cene all’aperto nella bella stagione e per prolungare la sala verso il giardino. Al piano terra è presente, con accesso dall’esterno, una cantina/vano tecnico. Al piano primo si sviluppa la zona notte composta da tre camere da letto (una matrimoniale e due singole) e un bagno illuminato da un lucernaio. E’ inoltre dotata di giardino di 66 mq, e di due posti auto esclusivi, uno all’interno della proprietà e uno nell’area comune.
Giardino privato di 66 mq
Patio 12 mq
Progetto illuminotecnico incluso
- PropostaOffro
- ContrattoVendita
- Prezzo275.000,00 €
- Vani4
- Numero piani2
- Mq totali125
- Camere3
- Bagni2
- Posti auto2
- Classe energeticaA3
- Classe energetica (ipe)5034
- Classe energetica (unità di misura)Kwh/m²a
- CucinaCucina a vista
- GiardinoPrivato
- Tipologia immobileVilla a schiera
- ProvinciaRavenna
- ComuneFaenza
- Data22-10-2025 05:31:52
- CodiceEA-B3D97B











