Villa bifamiliare 10 vani 300mq

Dati annuncio : Vendita Villa bifamiliare, Monreale
A Monreale, in zona panoramica, adiacente la circonvallazione, vendesi porzione di villa bifamiliare inserita all´interno di un residence,´´Colle del sole ´´ in via Favara, di fronte il ristorante la botte, zona ben urbanizzata, facilità di posteggio, riscaldamento autonomo, ottime rifiniture, pavimenti in parquet, ceramiche nei servizi, di prima scelta. La villa è divisa in due appartamenti con accessi indipendenti.
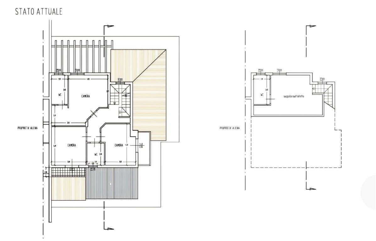
il primo esteso 180 mq, si sviluppa su 3 livelli: piano rialzato primo e mansarda, composto da ingresso su ampio salone doppio, cucina, lavanderia, bagno, il primo piano composto da 3 camere, una con bagno con vasca e doccia annesso, altro wc, ulteriore comoda mansarda con wcd, totalmente parquettato, completano la proprietà uno splendido giardino curato e un terrazzo panoramico sul golfo di Palermo.
Al piano terra è presente un ulteriore appartamento di circa 120 mq, totalmente alla luce composto da ampio open space con cucina, salone con camino, camera da letto matrimoniale, cameretta, 2 wcd, lavanderia oltre ampio spazio esterno, aiuole e giardino. Entrambi gli appartamenti sono in ottimo stato di manutenzione, con infissi in legno in vetro camera, riscaldamento autonomo, rifiniture di pregio.
- PropostaOffro
- ContrattoVendita
- Prezzo520.000,00 €
- Vani10
- Mq totali300
- Camere10
- Bagni6
- Classe energeticaG
- StatoOttimo stato
- CucinaCucina abitabile
- GiardinoPrivato
- RiscaldamentoAutonomo
- Tipologia immobileVilla bifamiliare
- ProvinciaPalermo
- ComuneMonreale
- Data05-07-2025 05:25:42
- CodiceEA-26130B











