Villa bifamiliare 6 vani 675mq
395.000,00 €

0 Piace
0 Piace
Dati annuncio : Vendita Villa bifamiliare, Arosio
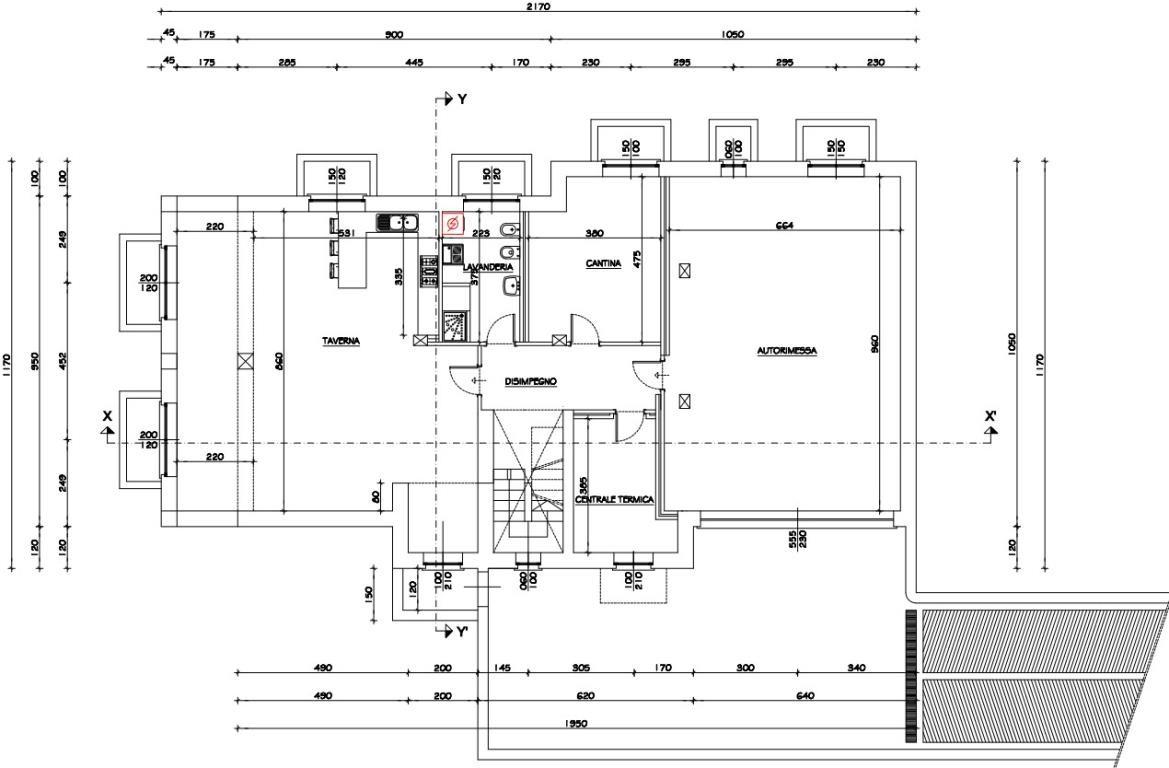
In tranquilla zona residenziale, proponiamo villa singola a rustico su unico livello oltre interratto e mansarda, 675 mq totali (225 mq a piano), oltre giardino privato di 750 mq ca. L´immobile è costituito dalla struttura (costruita antisismica e con particolari accorgimenti) senza il tetto, in quanto il piano mansardato potrebbe essere innalzato per creare un piano ulteriore a seconda delle esigenze. L´ immobile si presta bene per creare 2 ville bifamigliari o una piccola palazzina di 3/4 appartamenti.
- PropostaOffro
- ContrattoVendita
- Prezzo395.000,00 €
- Vani6
- Mq totali675
- Camere5
- Bagni2
- CucinaCucina abitabile
- GiardinoPrivato
- Tipologia immobileVilla bifamiliare
- ProvinciaComo
- ComuneArosio
- Data18-12-2025 06:32:08
- CodiceEA-690443











