Villa quadrilocale 137mq

Dati annuncio : Vendita Villa, Canegrate
In una delle zone residenziali più tranquille e ben servite di Canegrate, proponiamo in vendita villa singola edificata negli anni ’80, ideale per chi desidera una casa indipendente da personalizzare secondo le proprie esigenze.
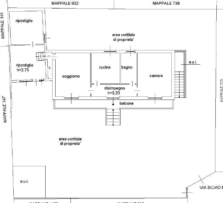
L’abitazione si sviluppa su un lotto di terreno di circa 575 mq e offre una superficie di 134 mq al piano rialzato, composta da ambienti ampi e luminosi, oltre a un piano interrato di 90 mq con locali accessori, perfetti per creare una taverna, lavanderia o spazi di servizio.
Il tetto si presenta in buone condizioni, mentre il resto dell’immobile è allo stato originale e necessita di interventi di ristrutturazione.
La possibilità di ampliamento rappresenta un ulteriore punto di forza, offrendo l’opportunità di adattare gli spazi alle proprie necessità o di valorizzare l’immobile con un progetto moderno.
Distanze dai principali servizi:
• Stazione ferroviaria di Canegrate: circa 1,2 km
• Scuole primarie e secondarie: 500 metri
• Supermercato e negozi di prima necessità: 700 metri
• Centro paese: 800 metri
• Aree verdi e parco pubblico: a pochi passi
Una soluzione ideale per chi cerca indipendenza, tranquillità e libertà progettuale, in una posizione comoda e ben collegata con Legnano, Parabiago e i principali servizi del territorio.
Il prezzo richiesto tiene conto sia della metratura generosa e del lotto di terreno privato – caratteristiche ormai sempre più difficili da trovare in zona – sia dello stato interno dell’abitazione, che necessita di lavori di ammodernamento. È quindi un valore che riflette un equilibrio corretto tra ciò che l’immobile offre oggi e il potenziale che può esprimere attraverso una ristrutturazione personalizzata.
In pratica: chi acquista non paga un immobile già ristrutturato secondo i gusti di altri, ma ha la libertà di realizzare la casa che desidera, valorizzando al massimo lo spazio e la posizione.
- PropostaOffro
- ContrattoVendita
- Prezzo230.000,00 €
- Vani4
- Mq totali137
- Camere1
- Bagni1
- StatoRistrutturato
- CucinaCucina abitabile
- GiardinoPrivato
- Tipologia immobileVilla
- ProvinciaMilano
- ComuneCanegrate
- Data23-10-2025 05:38:06
- CodiceEA-60D9E8











