Villa quadrilocale 210mq
Dati annuncio : Vendita Villa, Maddaloni
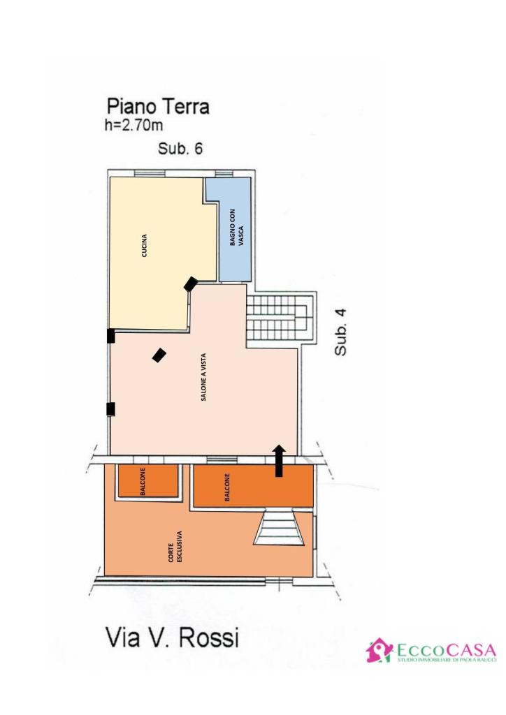
A pochi metri dal centro , in zona residenziale e tranquilla, proponiamo in esclusiva villa unifamiliare a spalla su 4 livelli con terrazzi. Edificata nel 2006 , questa intrigante villa cos composta: Al piano seminterrato troviamo una spaziosa taverna, bagno con doccia, lavanderia e box auto di 25 mq circa; Al piano rialzato invece ci ospita un ampio salone a vista con accesso al piano terrazzato antistante, cucina abitabile e bagno con vasca; Al piano primo troviamo una camera matrimoniale, 2 camerette di cui una con accesso al terrazzo di circa 25mq e bagno con doccia: Infine, ma non meno importante, al piano secondo vi un sottotetto composto da ambiente aperto con terrazzo a livello di circa 30 mq Il tutto ottimamente rifinito e dotato di termoconvettori, impianto d´allarme, predisposizione aria condizionata e pannelli solari. Contattaci allo 0823 436914 o al 3920259207 anche via WhatsApp per ricevere ulteriori informazioni o fissare un appuntamento di visita della propriet. Visita il sito WWW.ECCOCASAIMMOBILIARE.IT per trovare tante altre soluzioni in vendita o in affitto adatte alle tue necessit. Seguici anche su Facebook ed Instagram per essere sempre aggiornato sulle ultime novit del mercato immobiliare. Se ti fa piacere, lascia una recensione sui nostri servizi . - SC9538920
- PropostaOffro
- ContrattoVendita
- Prezzo240.000,00 €
- Anno2006
- Vani4
- Numero piani4
- Mq totali210
- Bagni3
- StatoOttimo
- AscensoreNo
- TerrazzoSi
- CantinaNo
- RiscaldamentoAutonomo
- ArrediNo
- BoxBox singolo
- Cadenza spese condominialiAnnuali
- ProvinciaCaserta
- ComuneMaddaloni
- Data17-12-2025 05:30:53
- CodiceEA-537DEC











