Villa quadrilocale 95mq
Dati annuncio : Vendita Villa, Fondi
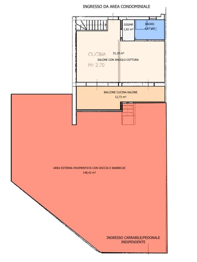
VILLA ANGOLARE - LUNGOMARE FONDI In complesso residenziale, di sole ville, a pochissimi metri dal cristallino mare di Fondi, dichiarato BANDIERA BLU, proponiamo in esclusiva la vendita di villa capofila angolare. Questa villa in vendita a Fondi un´ottima opportunit per chi desidera vivere in una casa moderna e confortevole. Costruita nel 2004, si trova in ottimo stato d´uso, pronta per essere acquistata ed abitata. La sua distribuzione su due livelli la rende perfetta sia per le famiglie che per coloro che amano avere uno spazio extra per gli ospiti. Con un totale di 95 metri quadri, la villa offre ampi spazi per il relax e la vita quotidiana. All´ingresso si trova un luminoso salone a vista con angolo cottura, disimpegno e bagno che completa una zona giorno ampia e perfetta per preparare deliziosi pasti da gustare in famiglia o con gli amici. Sia dal salone che dalla cucina si accede ad un ampio terrazzo pavimentato, di circa 150 mq, con doccia esterna e barbecue, ideale per godersi la brezza marina e il sole durante le belle giornate estive, grazie anche alla sua ottima esposizione a sud. Il piano notte , invece, composto da zona open da vivere come zona hobby/giochi e di notte molto comoda da utilizzare con un divano letto. Dalla zona open si accede alle due spaziose camere da letto, disimpegno, bagno e ripostiglio. Inoltre, la villa dotata di un sistema di allarme a video , per garantire la sicurezza dei suoi abitanti. La vendita viene effettuata completamente arredata, rendendo il trasferimento ancora pi facile e conveniente per i nuovi proprietari. Oltre agli spazi di esclusiva propriet, la villa circondata da un giardino comune, ideale per trascorrere del tempo all´aria aperta e respirare aria pura ed incontaminata, condita dall´ossigeno del verde e dallo iodio della brezza marina. L´ampia area pavimenta, col suo accesso carrabile, permette di parcheggiare comodamente pi auto. La villa dotata di riscaldamento autonomo a metano, garantendo un ambiente caldo e confortevole durante i mesi pi freddi. Inoltre, il suo ottimo stato di conservazione la rende una scelta perfetta per coloro che cercano una casa pronta all´uso senza dover affrontare eventuali lavori di ristrutturazione. In sintesi, questa villa in vendita a Fondi una fantastica opportunit per chi desidera vivere in una casa moderna e ben curata, con ampi spazi e dotata di tutte le comodit necessarie per una vita confortevole. Non lasciarti sfuggire questa occasione, contatta subito l´agenzia immobiliare per organizzare una visita! Per info e/o appuntamenti contattaci, allo 0823.436914 Seguici per restare sempre aggiornato su Fb: Eccocasa Maddaloni Instagram: Eccocasa_ Maddaloni - SC9540032
- PropostaOffro
- ContrattoVendita
- Prezzo215.000,00 €
- Anno2004
- Vani4
- Numero piani2
- Mq terrazzo150
- Mq totali95
- Bagni2
- StatoOttimo
- AscensoreNo
- TerrazzoSi
- GiardinoCondominiale
- CantinaNo
- RiscaldamentoAutonomo
- ArrediNo
- BoxNo
- Cadenza spese condominialiAnnuali
- ProvinciaLatina
- ComuneFondi
- Data17-12-2025 05:30:53
- CodiceEA-BBC651











